The Lexington Planning Commission unanimously approved an application for exterior changes to the recently shuttered KFC building on Walker Street, moving the building one step closer to becoming a Chipotle Mexican Grill.
The application, which was the only item of business before the Commission at its meeting last Thursday, included a number of design changes to the exterior of the building, most of which are aesthetic in nature.
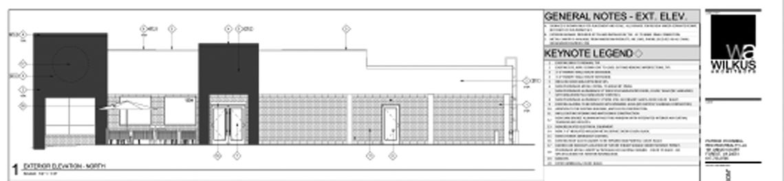
The one addition to the exterior of the building will be an 81- square-foot abutment on the rear side of the building for a new drive-thru window on the northern end of the building (the side nearest to Nelson Street/U.S. 60). The drive-thru window used by KFC, which was located at the southern end of the building, will be removed and the space will be filled in with brick that will match the existing brick on the building.
Two parking spaces on the front side of the building (facing Walker Street) near the entrance will be removed to make space for a 450-square-foot outdoor dining area. In response to a question from the Planning Commission regarding how many tables would be in that area, Brad Nelson, the general contractor for the renovation, said that it would depend on several factors, but that Chipotle usually had “four or five tables” in their patio areas.
The current entrance to the building will be removed – and filled with brick to match the surrounding exterior – with a new entrance being installed closer to Nelson Street, near the patio.
The parapets on the roof will be raised to better hide the new utility units that will be installed, and the walk-in refrigerator that is currently located at the back of the building will be removed. In addition to the new brick in-fills, the exterior will have a black and gray color scheme, which will be offset by the red in the Chipotle signs. The signs were not included in the application approved last week, but will come before the Planning Commission at a future meeting.
Nelson told the Planning Commission that the plan is to begin work on the building in April. Commission member Krista Anderson asked when the restaurant could be expected to open if work began as scheduled, and Nelson estimated that the exterior work would take about six months. There will also be renovations to the interior of the building, which will begin once the exterior work is “substantially complete,” and will take around four months to complete.
“If we’re selling burritos at the first of the year, we’re doing well,” he said. “That’s what we’re hoping for, anyway.”
The only concern raised by the Planning Commission was in relation to the entrances to the restaurant’s parking lot. The space has two entrances from Walker Street: one toward the northern end of the parking lot, near the traffic light at the intersection of Walker and Nelson streets, and one further up Walker Street.
The site plan included in the packet for the meeting indicated that the northern entrance was larger and would serve as both an entrance and the exit from the lot, while the other would solely be an entrance. Both Commission Chair Shannon Spencer and member Mary Stuart-Harlow raised concerns about traffic coming off of Nelson Street onto Walker potentially being backed up by vehicles waiting to utilize the northern entrance if cars were sitting at the light on Walker Street.
City planner Arne Glaeser said that he wasn’t sure that the city had any authority or mechanism by which they could require that the owners not allow vehicles to enter through the northern entrance, and Spencer suggested to Nelson that the potential traffic issues at the intersection is something that they might want to take into consideration.

WHEN CONSIDERING the application for exterior renovations to the former KFC building to turn it into a Chipotle, the Lexington Planning Commission was presented with design drawings. The drawing above shows the proposed changes to the Walker Street side of the building, which include moving the main entrance of the restaurant closer to Nelson Street and removing two parking spaces on that end of the building for an outdoor dining patio. The Planning Commission also saw the site plan (below), which shows the proposed dining patio and the location of an 81-square-foot abutment on the rear side of the building for a new drive-thru window.


